伊丹市 野間北1丁目 中古一戸建て

尼崎市 不動産伊丹市 野間北1丁目 中古一戸建て

兵庫県伊丹市野間北1丁目の中古一戸建ての購入【仲介手数料無料ハウジングステージ】

〔物件ID〕 0000033544
  • 仲介手数料30%OFF
  • 中古戸建
  • 新着
2,780 万円
所在地 兵庫県伊丹市野間北1丁目
交通 阪急伊丹線「新伊丹」駅 徒歩26分
建築面積 148.51m2 (44.92坪)
土地面積 117.52m2 (35.54坪)
築年月 1994年07月(平成6年07月)
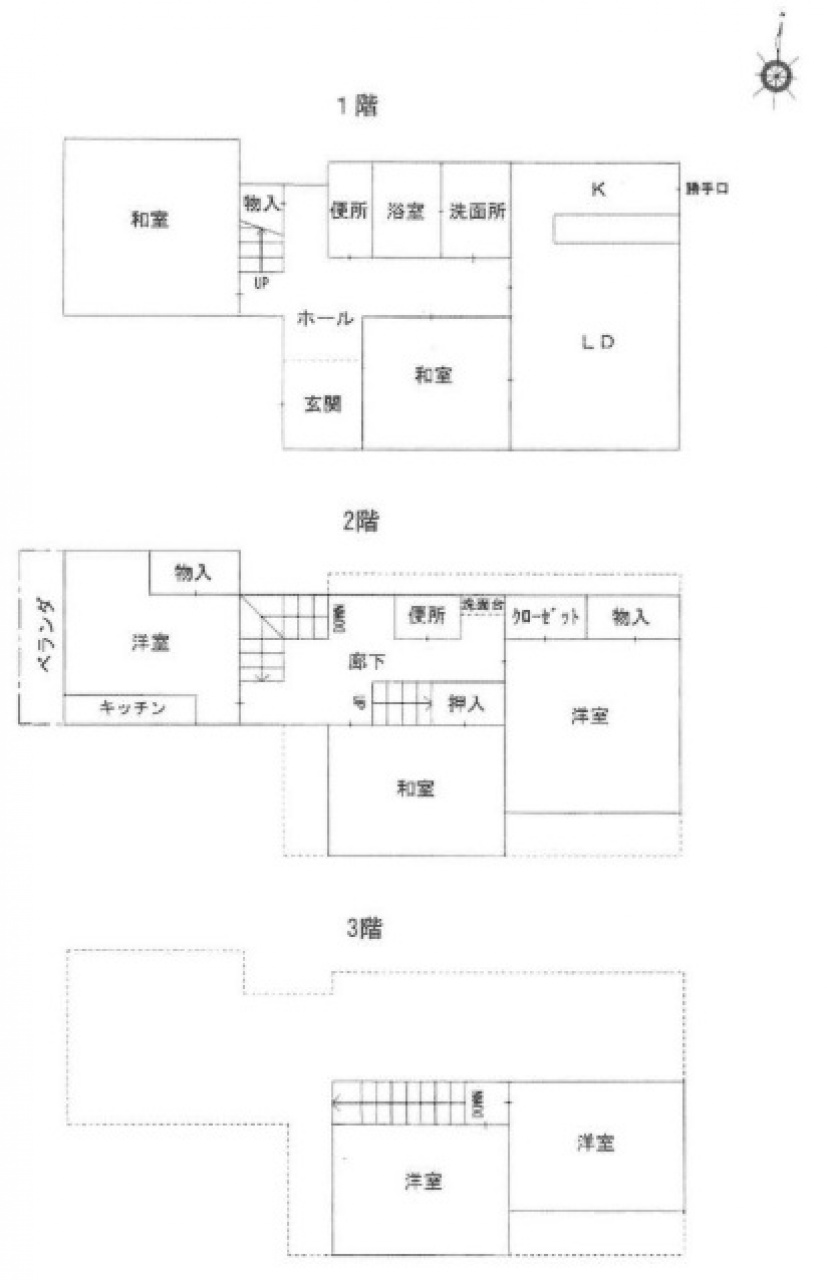
間取り 7LDK

仲介手数料
割引
法定上限額 30%OFF

  • 駐車場あり
伊丹市 野間北1丁目 中古一戸建ての物件写真
伊丹市 野間北1丁目 中古一戸建てのMAP・周辺環境
伊丹市 野間北1丁目 中古一戸建ての物件概要
所在地 兵庫県伊丹市野間北1丁目
交通 阪急伊丹線「新伊丹」駅 徒歩26分
価格 2,780万円
小学校区昆陽里小学校 (距離 400 m)中学校区松崎中学校 (距離 400 m)
建物面積 148.51m2(44.92坪) 土地面積 117.52m2(35.54坪)
間取り 7LDK 構造 木造
築年月 1994年07月(平成6年07月) 総戸数 ---
土地権利 所有権 地目 宅地
私道負担/私道面積 セットバック/距離/面積 ---
都市計画 市街 用途地域 一中
建ぺい率 60% 容積率 200%
接道状況 一方
方向:西      種別:私道      幅員:4.5m      間口:8.2m
駐車場 駐車場料金 ---
その他使用料 ---
現況 空家 引渡 即時
取引態様 仲介 国土法届出 ---
設備 ---
コメント ★広々7LDK
更新日 2026年03月28日 次回更新予定日 2026年04月11日
ローンシミュレーション
自己資金 万円
※別途、諸費用が必要です。
ローン借入額 万円
内ボーナス時支払い 万円
※ボーナス返済月の加算額ではありません。
※お借入れ予定額の50%以下の金額をご入力ください。
金利
返済年数
  • 月々(毎月返済額)
  • 0
  • ボーナス(ボーナス時加算額)
  • 0
同じエリアの売り出し物件

伊丹市野間北の一戸建て情報

伊丹市 野間北1丁目 新築一戸建て
  • 仲介手数料30%OFF
  • 新築一戸建て

仲介手数料
割引
法定上限額 30%OFF

4,580万円/2SLDK
  • 兵庫県伊丹市野間北1丁目
  • 阪急伊丹線「伊丹」駅 徒歩28分
  • [建物面積] 107.07m2
  • ★充実の設備仕様
  • 月々0
  • ボーナス0

伊丹市の一戸建て情報

伊丹市 西野6丁目 新築一戸建て
  • 仲介手数料30%OFF
  • 新築一戸建て

仲介手数料
割引
法定上限額 30%OFF

3,280万円/4LDK
  • 兵庫県伊丹市西野6丁目
  • 阪急伊丹線「伊丹」駅 バス22分
  • [建物面積] 110.02m2
  • □高速道路ICも近く、利便性の良い立地です!
  • 月々0
  • ボーナス0
伊丹市 瑞穂町3丁目 新築一戸建て
  • 仲介手数料30%OFF
  • 新築一戸建て

仲介手数料
割引
法定上限額 30%OFF

4,598万円/3SLDK
  • 兵庫県伊丹市瑞穂町3丁目
  • 阪急伊丹線「伊丹」駅 徒歩22分
  • [建物面積] 90.25m2
  • □家族みんないがゆったりくつろげる17.25帖の広々リビング
  • 月々0
  • ボーナス0
伊丹市 堀池3丁目 新築一戸建て
  • 仲介手数料無料
  • 新築一戸建て

仲介手数料
無料
法定上限額 100%OFF

3,790万円/3LDK
  • 兵庫県伊丹市堀池3丁目
  • 阪急伊丹線「伊丹」駅 バス8分
  • [建物面積] 82.29m2
  • 〇 3LDKの新築戸建 〇 お料理中も会話が楽しめる対面式キッチン 〇 キッチン横に洗面室・浴…
  • 月々0
  • ボーナス0
伊丹市 南野1丁目 新築一戸建て
  • 仲介手数料30%OFF
  • 新築一戸建て

仲介手数料
割引
法定上限額 30%OFF

5,598万円/4LDK
  • 兵庫県伊丹市南野1丁目
  • 阪急伊丹線「稲野」駅 徒歩11分
  • [建物面積] 95.95m2
  • ・省エネ性能3、断熱性能5(BELS取得)
  • 月々0
  • ボーナス0

物件情報と現況に差異がある場合、現況を優先します。
掲載物件は売却済み、売却中止、価格変更となる場合がありますので、予めご了承ください。
仲介物件には所定の仲介手数料(消費税含む)が必要です。

株式会社ハウジングステージ
会社名 株式会社ハウジングステージ
所在地 〒661-0033
尼崎市南武庫之荘2丁目6-5
交通 阪急武庫之荘駅 徒歩5分
TEL 06-6480-5315
FAX 06-6480-5308
ホームページHP https://www.housing-stage.co.jp/
メールアドレスE-MAIL yokkaichi@bdu-f.co.jp
免許番号 兵庫県知事(3)第204169号
営業時間 10:00~18:00
定休日 毎週火曜日、水曜日
物件を探す ×
物件種別
エリア
価格
建物面積
土地面積
専有面積
間取り
駅徒歩
築年数
こだわり条件
無料会員登録で非公開販売物件をご覧いただけます! 新規会員登録

会員登録で物件数が大幅アップ!

公開物件
290
公開物件+非公開物件
1,254

現在の会員数631

  • 会員登録は無料!
  • 会員専用マイページを作成!
  • 希望条件に合う新着・価格変更物件をメール配信!
  • 非公開物件が閲覧可能!
  • 他社にはない特別限定物件のご紹介チャンスあり!
新規会員登録