尼崎市 不動産パレ塚口町

兵庫県尼崎市塚口町1丁目の中古マンションの購入【仲介手数料無料ハウジングステージ】

〔物件ID〕 0000033691
  • 仲介手数料30%OFF
  • 中古マンション
5,480 万円
所在地 兵庫県尼崎市塚口町1丁目
交通 阪急神戸線「塚口」駅 徒歩4分
JR福知山線「塚口」駅徒歩17分
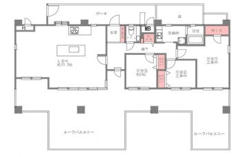
専有面積 94.33m2 (28.53坪)
間取り 3LDK
築年月 1999年04月(平成11年04月)
所在階/階数 10 階 / 10 階

仲介手数料
割引
法定上限額 30%OFF

  • 南向き
  • 最上階
  • 駐車場あり
パレ塚口町の物件写真
パレ塚口町のMAP・周辺環境
パレ塚口町の物件概要
所在地 兵庫県尼崎市塚口町1丁目
交通 阪急神戸線「塚口」駅 徒歩4分
JR福知山線「塚口」駅徒歩17分
価格 5,480万円
小学校区塚口小学校 (距離 750 m)中学校区塚口中学校 (距離 1950 m)
専有面積 94.33m2(28.53坪) 間取り 3LDK
バルコニー面積 72.06m2 バルコニー向き
その他面積 ---
構造 RC 所在階/階建 10階/10階
築年月 1999年04月(平成11年04月) 総戸数 37戸
土地権利 所有権 用途地域 近商
管理会社 晴耕雨読(株)
管理形態 管理会社に全部委託 管理員 巡回
管理費 21,580円 修繕積立金 21,580円
駐車場 空有 駐車場料金 700 円
その他使用料 ---
現況 空家 引渡 相談
取引態様 仲介 国土法届出 ---
設備 ---
コメント ■リフォーム2026年5月末完成予定!
★分譲平面駐車場・権利付!区画No.2★南向き角部屋!
(全長5,030mm・全幅2,420mm)
★最上階のワンフロア住戸!
★専用ポーチ付き!(16.56㎡)★ルーフバルコニー付き!(72.06㎡)
★阪急神戸線「塚口」駅徒歩4分!
★JR福知山線「塚口」駅徒歩17分!
★区画の整った街並み!
★デザイナーズマンション!
★「畑田建築計画所」設計!
★外壁はコンクリート打ち放しと石貼りのコンビネーション!
★オートロック・宅配ボックス付き!
★近隣に生活施設が充実!
★『塚口小学校』徒歩9分!
★『コープ 塚口』徒歩2分!
★『いかり 塚口店』徒歩3分!
★『椀田公園』徒歩7分!

◇『塚口中学校』徒歩24分
更新日 2026年05月22日 次回更新予定日 2026年06月05日
ローンシミュレーション
自己資金 万円
※別途、諸費用が必要です。
ローン借入額 万円
内ボーナス時支払い 万円
※ボーナス返済月の加算額ではありません。
※お借入れ予定額の50%以下の金額をご入力ください。
金利
返済年数
  • 月々(毎月返済額)
  • 0
  • ボーナス(ボーナス時加算額)
  • 0
同じエリアの売り出し物件

尼崎市塚口町の中古マンション情報

グリーンハイツ塚口
  • 仲介手数料30%OFF
  • 中古マンション
  • 新着
  • 値下げ

仲介手数料
割引
法定上限額 30%OFF

730万円/3LDK
  • 兵庫県尼崎市塚口町4丁目
  • JR福知山線「塚口」駅 徒歩9分
  • [専有面積] 58.83m2
  • ★角部屋・南向きバルコニー
  • 月々0
  • ボーナス0
パレ・ロワイヤル塚口
  • 仲介手数料30%OFF
  • 中古マンション
  • 値下げ

仲介手数料
割引
法定上限額 30%OFF

4,980万円/3LDK
  • 兵庫県尼崎市塚口町1丁目
  • 阪急神戸線「塚口」駅 徒歩3分
  • [専有面積] 89.60m2
  • ◇リフォーム内容 ・フルリノベーション/水回り設備新調 ・全室床・壁貼り替え ・建具・照明新…
  • 月々0
  • ボーナス0
メゾンローズ塚口
  • 仲介手数料30%OFF
  • 中古マンション
  • 値下げ

仲介手数料
割引
法定上限額 30%OFF

1,680万円/2LDK
  • 兵庫県尼崎市塚口町5丁目
  • 阪急神戸線「塚口」駅 徒歩10分
  • [専有面積] 60.63m2
  • □2025年12月リフォーム
  • 月々0
  • ボーナス0

尼崎市の中古マンション情報

エーベル園田・田能
  • 仲介手数料30%OFF
  • 中古マンション

仲介手数料
割引
法定上限額 30%OFF

1,650万円/3LDK
  • 兵庫県尼崎市田能3丁目
  • 阪急神戸線「園田」駅 バス8分/停歩2分
  • [専有面積] 66.39m2
  • 自分好みにリノベーションできます ~こんな方にオススメ~ 〇物件購入価格を抑え『お部屋を自分好…
  • 月々0
  • ボーナス0
ユニハイム園田弐番館
  • 仲介手数料30%OFF
  • 中古マンション

仲介手数料
割引
法定上限額 30%OFF

4,440万円/3LDK
  • 兵庫県尼崎市東園田町6丁目
  • 阪急神戸線「園田」駅 徒歩9分
  • [専有面積] 96.16m2
  • □最上階・角部屋・三面バルコニー
  • 月々0
  • ボーナス0
サンロイヤル北園田ブランシュール
  • 仲介手数料30%OFF
  • 中古マンション
  • 新着

仲介手数料
割引
法定上限額 30%OFF

1,780万円/3DK
  • 兵庫県尼崎市御園1丁目
  • JR福知山線「猪名寺」駅 徒歩15分
  • [専有面積] 60.32m2
  • 【リフォーム履歴アリ】 ●平成18年11月実施、スケルトンフルリノベ! ●スケルトン状態か…
  • 月々0
  • ボーナス0
ロイヤル塚口
  • 仲介手数料30%OFF
  • 中古マンション

仲介手数料
割引
法定上限額 30%OFF

2,200万円/1LDK
  • 兵庫県尼崎市南塚口町6丁目
  • 阪急神戸線「塚口」駅 徒歩7分
  • [専有面積] 56.40m2
  • □室内大変丁寧にお使いです♪
  • 月々0
  • ボーナス0

物件情報と現況に差異がある場合、現況を優先します。
掲載物件は売却済み、売却中止、価格変更となる場合がありますので、予めご了承ください。
仲介物件には所定の仲介手数料(消費税含む)が必要です。

株式会社ハウジングステージ
会社名 株式会社ハウジングステージ
所在地 〒661-0033
尼崎市南武庫之荘2丁目6-5
交通 阪急武庫之荘駅 徒歩5分
TEL 06-6480-5315
FAX 06-6480-5308
ホームページHP https://www.housing-stage.co.jp/
メールアドレスE-MAIL yokkaichi@bdu-f.co.jp
免許番号 兵庫県知事(3)第204169号
営業時間 10:00~18:00
定休日 毎週火曜日、水曜日
物件を探す ×
物件種別
エリア
価格
建物面積
土地面積
専有面積
間取り
駅徒歩
築年数
こだわり条件
無料会員登録で非公開販売物件をご覧いただけます! 新規会員登録

会員登録で物件数が大幅アップ!

公開物件
286
公開物件+非公開物件
1,219

現在の会員数647

  • 会員登録は無料!
  • 会員専用マイページを作成!
  • 希望条件に合う新着・価格変更物件をメール配信!
  • 非公開物件が閲覧可能!
  • 他社にはない特別限定物件のご紹介チャンスあり!
新規会員登録