パレ・ロワイヤル塚口

尼崎市 不動産パレ・ロワイヤル塚口

兵庫県尼崎市塚口町1丁目の中古マンションの購入【仲介手数料無料ハウジングステージ】

〔物件ID〕 0000033300
  • 仲介手数料無料
  • 中古マンション
  • 新着
5,980 万円
所在地 兵庫県尼崎市塚口町1丁目
交通 阪急神戸線「塚口」駅 徒歩3分
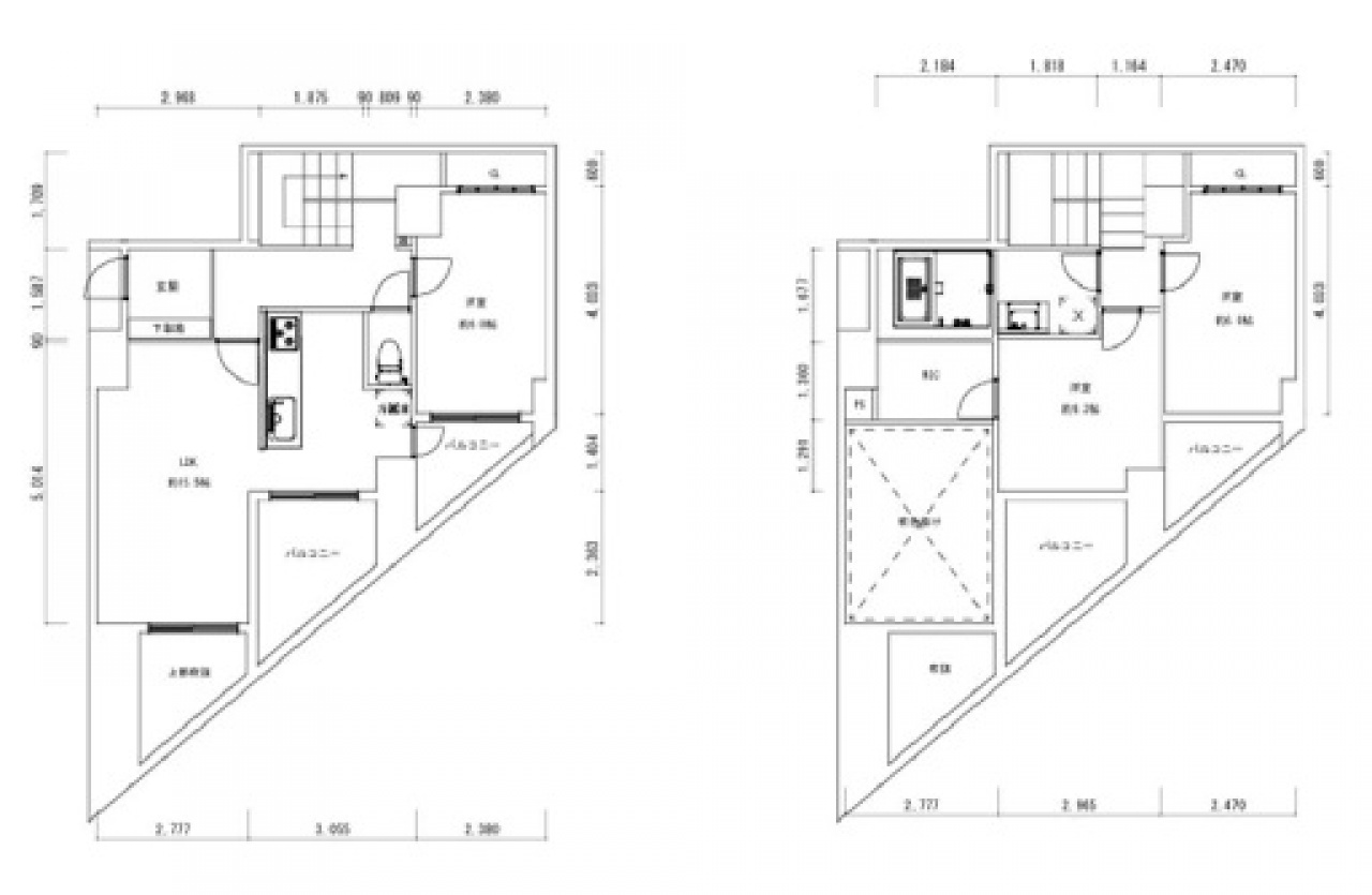
専有面積 89.60m2 (27.1坪)
間取り 3LDK
築年月 2003年02月(平成15年02月)
所在階/階数 5 階 / 10 階

仲介手数料
無料
法定上限額 100%OFF

  • リフォーム済
  • リノベーション済
  • 駐車場あり
パレ・ロワイヤル塚口の物件写真
パレ・ロワイヤル塚口のMAP・周辺環境
パレ・ロワイヤル塚口の物件概要
所在地 兵庫県尼崎市塚口町1丁目
交通 阪急神戸線「塚口」駅 徒歩3分
価格 5,980万円
小学校区塚口小学校 (距離 560 m)中学校区塚口中学校 (距離 1840 m)
専有面積 89.60m2(27.1坪) 間取り 3LDK
バルコニー面積 26.01m2 バルコニー向き ---
その他面積 ---
構造 RC 所在階/階建 5階/10階
築年月 2003年02月(平成15年02月) 総戸数 30戸
土地権利 所有権 用途地域 近商
管理会社 晴耕雨耕株式会社
管理形態 管理会社に全部委託 管理員 日勤
管理費 21,590円 修繕積立金 30,020円
駐車場 --- 駐車場料金 ---
その他使用料 ---
現況 空家 引渡 相談
取引態様 仲介 国土法届出 ---
設備 ---
コメント 【R8.5フルリノベーション+即予約可!】
◇阪急「塚口駅」徒歩3分の近さ
◇特徴
・周辺環境充実!お買い物施設が近く生活至便な立地
・WIC付き収納スペース豊富!お部屋がスッキリ片付きます
・吹き抜けあり室内明るく開放感があります

◇リフォーム内容
・フルリノベーション/水回り設備新調
・全室床・壁貼り替え
・建具・照明新調など
★阪急神戸線「塚口」駅徒歩3分!
★駅前の便利な立地!
★『若林広幸建築研究所』設計!
★外壁はタイル張り!
★建物は内廊下設計!
★オートロック・宅配ボックス付き!
★ペット飼育可能(諸条件有り)!
★『塚口小学校』徒歩7分!
★『コープ塚口』徒歩1分!
★『阪急塚口サービスセンター』徒歩4分!
★『グンゼタウンセンター つかしん』
 徒歩16分!
更新日 2026年03月05日 次回更新予定日 2026年03月19日
ローンシミュレーション
自己資金 万円
※別途、諸費用が必要です。
ローン借入額 万円
内ボーナス時支払い 万円
※ボーナス返済月の加算額ではありません。
※お借入れ予定額の50%以下の金額をご入力ください。
金利
返済年数
  • 月々(毎月返済額)
  • 0
  • ボーナス(ボーナス時加算額)
  • 0
同じエリアの売り出し物件

尼崎市塚口町の中古マンション情報

メゾンローズ塚口
  • 仲介手数料30%OFF
  • 中古マンション
  • 値下げ

仲介手数料
割引
法定上限額 30%OFF

1,680万円/2LDK
  • 兵庫県尼崎市塚口町5丁目
  • 阪急神戸線「塚口」駅 徒歩10分
  • [専有面積] 60.63m2
  • □2025年12月リフォーム
  • 月々0
  • ボーナス0

尼崎市の中古マンション情報

サンロイヤル南園田
  • 仲介手数料30%OFF
  • 中古マンション

仲介手数料
割引
法定上限額 30%OFF

2,180万円/2LDK
  • 兵庫県尼崎市小中島3丁目
  • 阪急神戸線「園田」駅 徒歩14分
  • [専有面積] 59.60m2
  • ・間取り 2LDK・現況 空家・三方角部屋・全居室に窓、収納有り・2025年4月リフォーム済み(キ…
  • 月々0
  • ボーナス0
御園団地3号棟
  • 仲介手数料30%OFF
  • 中古マンション
  • 値下げ

仲介手数料
割引
法定上限額 30%OFF

530万円/2LDK
  • 兵庫県尼崎市御園2丁目
  • JR福知山線「塚口」駅 徒歩10分
  • [専有面積] 55.46m2
  • □室内大変丁寧にお使いです♪
  • 月々0
  • ボーナス0
パレ武庫元町
  • 仲介手数料30%OFF
  • 中古マンション

仲介手数料
割引
法定上限額 30%OFF

1,880万円/2LDK
  • 兵庫県尼崎市武庫元町1丁目
  • 阪急神戸線「武庫之荘」駅 徒歩17分
  • [専有面積] 56.61m2
  • □2025年12月リフォーム完了
  • 月々0
  • ボーナス0
下の森住宅
  • 仲介手数料30%OFF
  • 中古マンション
  • 値下げ

仲介手数料
割引
法定上限額 30%OFF

1,418万円/3LDK
  • 兵庫県尼崎市南武庫之荘4丁目
  • 阪急神戸線「武庫之荘」駅 徒歩12分
  • [専有面積] 70.00m2
  • □■リフォーム完了■□ (令和7年2月1日) 【内容】◎システムキッチン交換 ◎浴室シャワー…
  • 月々0
  • ボーナス0

物件情報と現況に差異がある場合、現況を優先します。
掲載物件は売却済み、売却中止、価格変更となる場合がありますので、予めご了承ください。
仲介物件には所定の仲介手数料(消費税含む)が必要です。

株式会社ハウジングステージ
会社名 株式会社ハウジングステージ
所在地 〒661-0033
尼崎市南武庫之荘2丁目6-5
交通 阪急武庫之荘駅 徒歩5分
TEL 06-6480-5315
FAX 06-6480-5308
ホームページHP https://www.housing-stage.co.jp/
メールアドレスE-MAIL yokkaichi@bdu-f.co.jp
免許番号 兵庫県知事(3)第204169号
営業時間 10:00~18:00
定休日 毎週火曜日、水曜日
物件を探す ×
物件種別
エリア
価格
建物面積
土地面積
専有面積
間取り
駅徒歩
築年数
こだわり条件
無料会員登録で非公開販売物件をご覧いただけます! 新規会員登録

会員登録で物件数が大幅アップ!

公開物件
282
公開物件+非公開物件
1,219

現在の会員数625

  • 会員登録は無料!
  • 会員専用マイページを作成!
  • 希望条件に合う新着・価格変更物件をメール配信!
  • 非公開物件が閲覧可能!
  • 他社にはない特別限定物件のご紹介チャンスあり!
新規会員登録