尼崎市 長洲東通1丁目 新築一戸建て

尼崎市 不動産尼崎市 長洲東通1丁目 新築一戸建て

兵庫県尼崎市長洲東通1丁目の新築一戸建ての購入【仲介手数料無料ハウジングステージ】

〔物件ID〕 0000033200
  • 仲介手数料無料
  • 新築戸建
  • 新着
4,680 万円
所在地 兵庫県尼崎市長洲東通1丁目
交通 JR東海道本線「尼崎」駅 徒歩11分
建築面積 100.81m2 (30.49坪)
土地面積 82.38m2 (24.91坪)
築年月 2026年03月(令和8年03月)
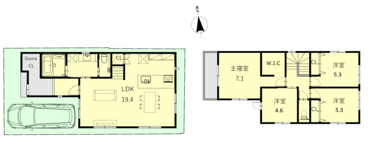
間取り 4LDK

仲介手数料
無料
法定上限額 100%OFF

  • 駐車場あり
尼崎市 長洲東通1丁目 新築一戸建ての物件写真
尼崎市 長洲東通1丁目 新築一戸建てのMAP・周辺環境
尼崎市 長洲東通1丁目 新築一戸建ての物件概要
所在地 兵庫県尼崎市長洲東通1丁目
交通 JR東海道本線「尼崎」駅 徒歩11分
価格 4,680万円
小学校区清和小学校 (距離 400 m)中学校区小田中学校 (距離 450 m)
建物面積 100.81m2(30.49坪) 土地面積 82.38m2(24.91坪)
間取り 4LDK 構造 木造
築年月 2026年03月(令和8年03月) 総戸数 ---
土地権利 所有権 地目 宅地
私道負担/私道面積 セットバック/距離/面積
都市計画 市街 用途地域 一住
建ぺい率 60% 容積率 200%
接道状況 ---
駐車場 駐車場料金 ---
その他使用料 ---
現況 未完成 引渡 相談
取引態様 仲介 国土法届出 ---
設備 ---
コメント  ○ JR線「尼崎」駅 徒歩10分
 ○ 阪神本線「杭瀬」駅 徒歩17分
 ○ 令和8年3月完成予定
 ○ 土地面積82.38平米(約24.91坪)整形地
 ○ 車1台駐車可(サイズ制限有)
 ○ 西側公道4.1mに約6.4m接道
 ○ 延床面積100.81平米の4LDK
 ○ LDK約19.4帖
 ○ 土間収納・ウォークインクローゼット有
 ○ トイレ2ヵ所有
 ○ (株)マリンホーム施工

■ 設備・仕様 ━━━━━━━━━━━━━━━・・・・・
 ○ 長期優良住宅
 ○ 耐震3等級
 ○ 食器洗乾燥機
 ○ タッチレス水栓
 ○ サイレントシンク
 ○ ほっカラリ床
 ○ ガス衣類乾燥機(リンナイ・乾太くん)
 ○ 宅配ボックス
 ○ Low-E複層ガラス

更新日 2026年02月23日 次回更新予定日 2026年03月09日
ローンシミュレーション
自己資金 万円
※別途、諸費用が必要です。
ローン借入額 万円
内ボーナス時支払い 万円
※ボーナス返済月の加算額ではありません。
※お借入れ予定額の50%以下の金額をご入力ください。
金利
返済年数
  • 月々(毎月返済額)
  • 0
  • ボーナス(ボーナス時加算額)
  • 0
同じエリアの売り出し物件

尼崎市の一戸建て情報

尼崎市 武庫之荘本町3丁目 中古テラス
  • 仲介手数料30%OFF
  • 中古テラス

仲介手数料
割引
法定上限額 30%OFF

800万円/3DK
  • 兵庫県尼崎市武庫之荘本町3丁目
  • 阪急神戸線「武庫之荘」駅 徒歩19分
  • [建物面積] 46.55m2
  • ☆リフォーム完了 (令和7年12月) ☆リフォーム履歴 過去分 (平成30年10月頃) ◇…
  • 月々0
  • ボーナス0
尼崎市 南武庫之荘12丁目 中古一戸建て
  • 仲介手数料30%OFF
  • 中古一戸建て

仲介手数料
割引
法定上限額 30%OFF

780万円/3DK
  • 兵庫県尼崎市南武庫之荘12丁目
  • JR東海道本線「立花」駅 徒歩18分
  • [建物面積] 47.62m2
  • □室内大変丁寧にお使いです♪
  • 月々0
  • ボーナス0
尼崎市 南武庫之荘5丁目 中古一戸建て
  • 仲介手数料30%OFF
  • 中古一戸建て

仲介手数料
割引
法定上限額 30%OFF

4,980万円/4LDK
  • 兵庫県尼崎市南武庫之荘5丁目
  • 阪急神戸線「武庫之荘」駅 徒歩10分
  • [建物面積] 278.88m2
  • ■ 建物68坪の広々4LDKです。 ■ 屋上サンルームもあります。 ■ 贅を凝らした邸宅です。…
  • 月々0
  • ボーナス0
尼崎市 富松町4丁目 中古一戸建て
  • 仲介手数料30%OFF
  • 中古一戸建て
  • 新着

仲介手数料
割引
法定上限額 30%OFF

3,580万円/5LDK
  • 兵庫県尼崎市富松町4丁目
  • 阪急伊丹線「稲野」駅 徒歩17分
  • [建物面積] 122.71m2
  • ●閑静な第1種低層住宅地×敷地約49坪×全居室6.0帖以上 ●第一種低層住居専用地域の静かな住宅…
  • 月々0
  • ボーナス0

物件情報と現況に差異がある場合、現況を優先します。
掲載物件は売却済み、売却中止、価格変更となる場合がありますので、予めご了承ください。
仲介物件には所定の仲介手数料(消費税含む)が必要です。

株式会社ハウジングステージ
会社名 株式会社ハウジングステージ
所在地 〒661-0033
尼崎市南武庫之荘2丁目6-5
交通 阪急武庫之荘駅 徒歩5分
TEL 06-6480-5315
FAX 06-6480-5308
ホームページHP https://www.housing-stage.co.jp/
メールアドレスE-MAIL yokkaichi@bdu-f.co.jp
免許番号 兵庫県知事(3)第204169号
営業時間 10:00~18:00
定休日 毎週火曜日、水曜日
物件を探す ×
物件種別
エリア
価格
建物面積
土地面積
専有面積
間取り
駅徒歩
築年数
こだわり条件
無料会員登録で非公開販売物件をご覧いただけます! 新規会員登録

会員登録で物件数が大幅アップ!

公開物件
281
公開物件+非公開物件
1,249

現在の会員数622

  • 会員登録は無料!
  • 会員専用マイページを作成!
  • 希望条件に合う新着・価格変更物件をメール配信!
  • 非公開物件が閲覧可能!
  • 他社にはない特別限定物件のご紹介チャンスあり!
新規会員登録