シャルマンコーポ伊丹

尼崎市 不動産シャルマンコーポ伊丹

兵庫県伊丹市西野1丁目の中古マンションの購入【仲介手数料無料ハウジングステージ】

〔物件ID〕 0000033047
  • 仲介手数料30%OFF
  • 中古マンション
  • 新着
1,180 万円
所在地 兵庫県伊丹市西野1丁目
交通 阪急伊丹線「伊丹」駅 バス14分/停歩3分(バス停 西野)
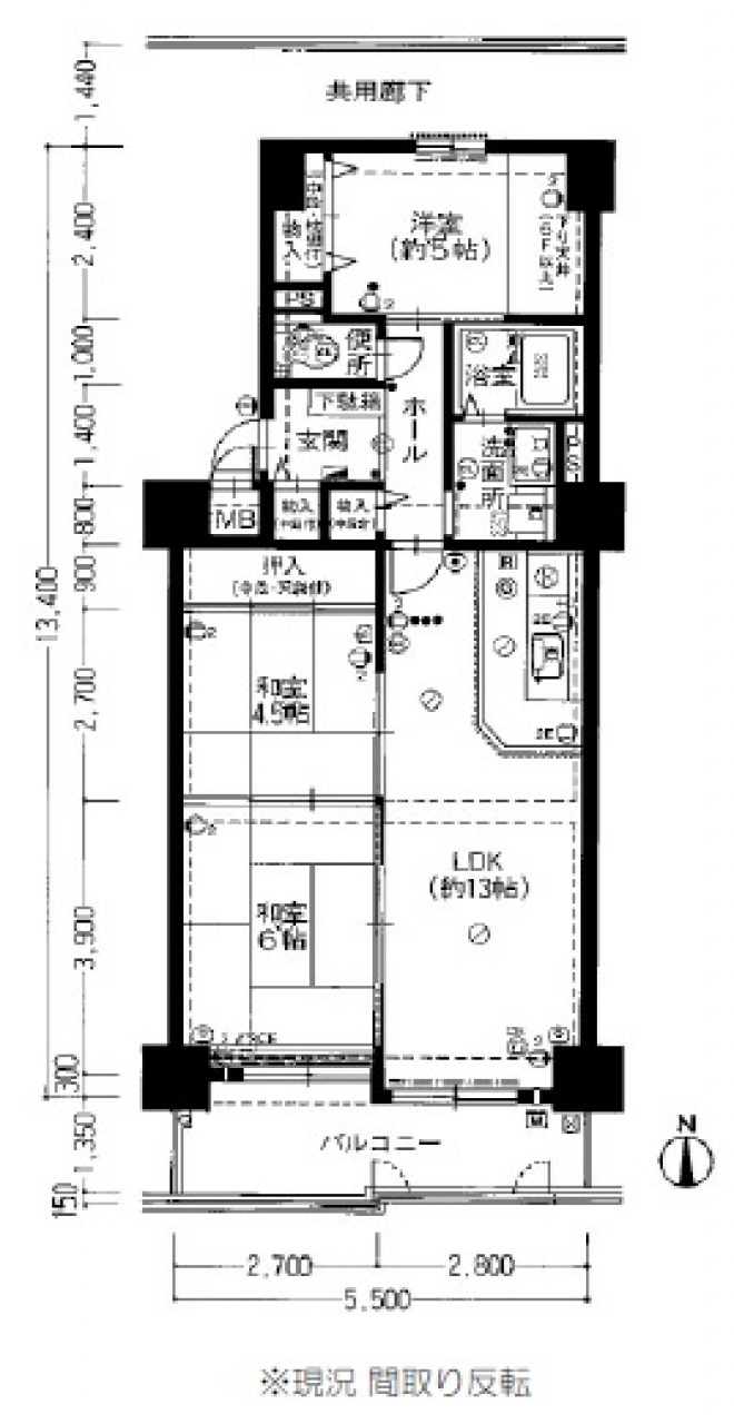
専有面積 67.13m2 (20.3坪)
間取り 3LDK
築年月 1984年09月(昭和59年09月)
所在階/階数 7 階 / 13 階

仲介手数料
割引
法定上限額 30%OFF

  • 南向き
シャルマンコーポ伊丹の物件写真
シャルマンコーポ伊丹のMAP・周辺環境
シャルマンコーポ伊丹の物件概要
所在地 兵庫県伊丹市西野1丁目
交通 阪急伊丹線「伊丹」駅 バス14分/停歩3分(バス停 西野)
価格 1,180万円
小学校区桜台小学校 (距離 400 m)中学校区天王寺川中学校 (距離 1280 m)
専有面積 67.13m2(20.3坪) 間取り 3LDK
バルコニー面積 --- バルコニー向き
その他面積 ---
構造 SRC 所在階/階建 7階/13階
築年月 1984年09月(昭和59年09月) 総戸数 318戸
土地権利 所有権 用途地域 一中
管理会社 東洋コミュニティサービス
管理形態 管理会社に一部委託 管理員 日勤
管理費 3,700円 修繕積立金 15,380円
駐車場 --- 駐車場料金 ---
その他使用料 ---
現況 空家 引渡 相談
取引態様 仲介 国土法届出 ---
設備 ---
コメント ★南向き
★エレベーター停止階
★バス停徒歩3分!
★『十六名公園』に面した
 緑が多く静かな住環境!
★建物はスキップフロア構造!
★総戸数318戸の規模の大きなマンション!
★敷地内に広場有り!
★『桜台小学校』徒歩5分!
★『関西スーパー』徒歩5分!
★『イオンモール伊丹昆陽』
 徒歩4分!
★『十六名公園』徒歩1分!
★『西分室』徒歩4分!

◇『天王寺川中学校』徒歩16分
更新日 2026年02月12日 次回更新予定日 2026年02月26日
ローンシミュレーション
自己資金 万円
※別途、諸費用が必要です。
ローン借入額 万円
内ボーナス時支払い 万円
※ボーナス返済月の加算額ではありません。
※お借入れ予定額の50%以下の金額をご入力ください。
金利
返済年数
  • 月々(毎月返済額)
  • 0
  • ボーナス(ボーナス時加算額)
  • 0
同じエリアの売り出し物件

伊丹市西野の中古マンション情報

シャルマンコーポ伊丹
  • 仲介手数料30%OFF
  • 中古マンション

仲介手数料
割引
法定上限額 30%OFF

1,580万円/3LDK
  • 兵庫県伊丹市西野1丁目
  • 阪急伊丹線「伊丹」駅
  • [専有面積] 79.59m2
  • 【リフォーム歴有×ペット可+即内覧可】 ■花火も楽しめる ■収納スペース豊富 ◇特徴 ・南…
  • 月々0
  • ボーナス0
シャルマンコーポ伊丹2号棟
  • 仲介手数料30%OFF
  • 中古マンション
  • 値下げ

仲介手数料
割引
法定上限額 30%OFF

1,578万円/3LDK
  • 兵庫県伊丹市西野1丁目
  • 阪急伊丹線「伊丹」駅 バス14分/停歩3分
  • [専有面積] 67.51m2
  • ★令和7年10月22日リフォーム完了
  • 月々0
  • ボーナス0
エンゼルハイムリバーサイド武庫川
  • 仲介手数料30%OFF
  • 中古マンション
  • 値下げ

仲介手数料
割引
法定上限額 30%OFF

1,899万円/3LDK
  • 兵庫県伊丹市西野4丁目
  • 阪急伊丹線「伊丹」駅 バス12分/停歩8分
  • [専有面積] 82.40m2
  • □室内大変丁寧にお使いです
  • 月々0
  • ボーナス0
チボリ桜台ハイツ3号棟
  • 仲介手数料30%OFF
  • 中古マンション
  • 値下げ

仲介手数料
割引
法定上限額 30%OFF

1,080万円/1LDK
  • 兵庫県伊丹市西野8丁目
  • 阪急伊丹線「伊丹」駅 バス17分/停歩2分
  • [専有面積] 60.15m2
  • ・南西向き!採光良好! ・フルリフォーム履歴あり! ■2014年8月にリフォーム実施! 【リ…
  • 月々0
  • ボーナス0

伊丹市の中古マンション情報

カルム伊丹緑ケ丘
  • 仲介手数料30%OFF
  • 中古マンション
  • 値下げ

仲介手数料
割引
法定上限額 30%OFF

1,688万円/4LDK
  • 兵庫県伊丹市緑ケ丘7丁目
  • JR福知山線「北伊丹」駅 徒歩14分
  • [専有面積] 73.46m2
  • ■令和5年9月リフォーム完了予定 ■南向き 陽当り通風良好 ■73.46平米の4LDK 4階部…
  • 月々0
  • ボーナス0
アリオ2
  • 仲介手数料30%OFF
  • 中古マンション
  • 値下げ

仲介手数料
割引
法定上限額 30%OFF

3,990万円/3LDK
  • 兵庫県伊丹市伊丹2丁目
  • JR福知山線「伊丹」駅 徒歩2分
  • [専有面積] 76.81m2
  • □室内リフォーム予定
  • 月々0
  • ボーナス0
パストラル昆陽
  • 仲介手数料30%OFF
  • 中古マンション
  • 値下げ

仲介手数料
割引
法定上限額 30%OFF

1,958万円/4LDK
  • 兵庫県伊丹市池尻1丁目
  • 阪急伊丹線「伊丹」駅 バス9分/停歩2分
  • [専有面積] 82.14m2
  • 月々0
  • ボーナス0
マイシティ伊丹壱番館
  • 仲介手数料30%OFF
  • 中古マンション

仲介手数料
割引
法定上限額 30%OFF

1,880万円/2LDK
  • 兵庫県伊丹市中野西3丁目
  • 阪急伊丹線「伊丹」駅 バス11分/停歩6分
  • [専有面積] 56.57m2
  • 【2023年11月リフォーム済み】 ◆システムキッチン・ユニットバス トイレ器具一式・洗面化粧…
  • 月々0
  • ボーナス0

物件情報と現況に差異がある場合、現況を優先します。
掲載物件は売却済み、売却中止、価格変更となる場合がありますので、予めご了承ください。
仲介物件には所定の仲介手数料(消費税含む)が必要です。

株式会社ハウジングステージ
会社名 株式会社ハウジングステージ
所在地 〒661-0033
尼崎市南武庫之荘2丁目6-5
交通 阪急武庫之荘駅 徒歩5分
TEL 06-6480-5315
FAX 06-6480-5308
ホームページHP https://www.housing-stage.co.jp/
メールアドレスE-MAIL yokkaichi@bdu-f.co.jp
免許番号 兵庫県知事(3)第204169号
営業時間 10:00~18:00
定休日 毎週火曜日、水曜日
物件を探す ×
物件種別
エリア
価格
建物面積
土地面積
専有面積
間取り
駅徒歩
築年数
こだわり条件
無料会員登録で非公開販売物件をご覧いただけます! 新規会員登録

会員登録で物件数が大幅アップ!

公開物件
282
公開物件+非公開物件
1,266

現在の会員数622

  • 会員登録は無料!
  • 会員専用マイページを作成!
  • 希望条件に合う新着・価格変更物件をメール配信!
  • 非公開物件が閲覧可能!
  • 他社にはない特別限定物件のご紹介チャンスあり!
新規会員登録