尼崎市 塚口町5丁目 土地

尼崎市 不動産尼崎市 塚口町5丁目 土地

兵庫県尼崎市塚口町5丁目の土地の購入【仲介手数料無料ハウジングステージ】

〔物件ID〕 0000032903
  • 仲介手数料30%OFF
  • 売地
3,780 万円
所在地 兵庫県尼崎市塚口町5丁目
交通 阪急神戸線「塚口」駅 徒歩13分
土地面積 104.42m2 (31.58坪)
建ぺい率/容積率 60 % / 150 %

仲介手数料
割引
法定上限額 30%OFF

  • 建築条件なし
  • 更地
  • 第一種低層住居専用地域
尼崎市 塚口町5丁目 土地の物件写真
尼崎市 塚口町5丁目 土地のMAP・周辺環境
尼崎市 塚口町5丁目 土地の物件概要
所在地 兵庫県尼崎市塚口町5丁目
交通 阪急神戸線「塚口」駅 徒歩13分
価格 3,780万円
小学校区尼崎北小学校 (距離 350 m)中学校区塚口中学校 (距離 1000 m)
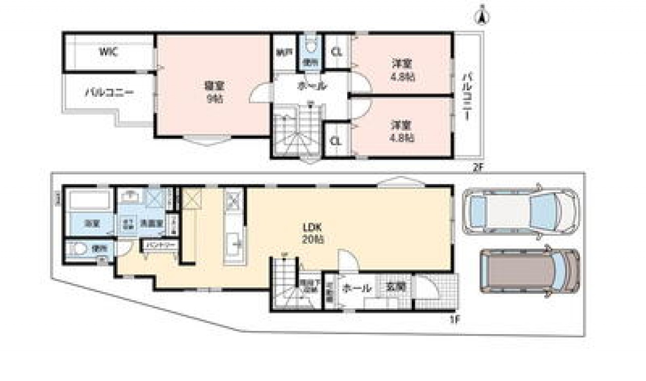
土地面積 104.42m2(31.58坪) 建築条件
土地権利 所有権 地目 宅地
私道負担/私道面積 セットバック/距離/面積
都市計画 市街 用途地域 一低
建ぺい率 60% 容積率 150%
接道状況 一方
方向:東      種別:公道      幅員:6m      間口:5.88m
その他使用料 ---
現況 更地 引渡 相談
取引態様 仲介 国土法届出 ---
設備 ---
コメント 【建築条件無し】
お好みのハウスメーカーで建築していただけます。

※間取りは参考プラン図です
更新日 2026年03月07日 次回更新予定日 2026年03月21日
ローンシミュレーション
自己資金 万円
※別途、諸費用が必要です。
ローン借入額 万円
内ボーナス時支払い 万円
※ボーナス返済月の加算額ではありません。
※お借入れ予定額の50%以下の金額をご入力ください。
金利
返済年数
  • 月々(毎月返済額)
  • 0
  • ボーナス(ボーナス時加算額)
  • 0
同じエリアの売り出し物件

尼崎市塚口町の土地情報

尼崎市 塚口町3丁目 土地
  • 仲介手数料30%OFF
  • 土地

仲介手数料
割引
法定上限額 30%OFF

4,980万円
  • 兵庫県尼崎市塚口町3丁目
  • 阪急神戸線「塚口」駅 徒歩8分
  • [土地面積] 121.72m2
  • ◇阪急「塚口」駅 徒歩8分◇有効面積36.8坪◇更地
  • 月々0
  • ボーナス0

尼崎市の土地情報

尼崎市 稲葉荘2丁目 土地
  • 仲介手数料30%OFF
  • 土地

仲介手数料
割引
法定上限額 30%OFF

1,700万円
  • 兵庫県尼崎市稲葉荘2丁目
  • JR東海道本線「甲子園口」駅 徒歩20分
  • [土地面積] 69.05m2
  • □建築条件はございません。お好きな工務店等で建築可能です
  • 月々0
  • ボーナス0
尼崎市 稲葉荘2丁目 土地
  • 仲介手数料30%OFF
  • 土地

仲介手数料
割引
法定上限額 30%OFF

1,780万円
  • 兵庫県尼崎市稲葉荘2丁目
  • JR東海道本線「立花」駅 徒歩27分
  • [土地面積] 56.86m2
  • □建築条件はございません。お好きな工務店等で建築可能です♪
  • 月々0
  • ボーナス0
尼崎市 稲葉荘2丁目 土地
  • 仲介手数料30%OFF
  • 土地

仲介手数料
割引
法定上限額 30%OFF

1,580万円
  • 兵庫県尼崎市稲葉荘2丁目
  • JR東海道本線「立花」駅 徒歩27分
  • [土地面積] 49.37m2
  • □建築条件はございません。お好きな工務店等で建築可能です♪
  • 月々0
  • ボーナス0
尼崎市 瓦宮1丁目 土地
  • 仲介手数料30%OFF
  • 土地
  • 値下げ

仲介手数料
割引
法定上限額 30%OFF

950万円
  • 兵庫県尼崎市瓦宮1丁目
  • 阪急神戸線「園田」駅 徒歩14分
  • [土地面積] 56.42m2
  • ◎南向き ◎私道約4mに約4.7ⅿ面す ◎学校区(園田小・園田中学校区) ◎買物至便!! …
  • 月々0
  • ボーナス0

物件情報と現況に差異がある場合、現況を優先します。
掲載物件は売却済み、売却中止、価格変更となる場合がありますので、予めご了承ください。
仲介物件には所定の仲介手数料(消費税含む)が必要です。

株式会社ハウジングステージ
会社名 株式会社ハウジングステージ
所在地 〒661-0033
尼崎市南武庫之荘2丁目6-5
交通 阪急武庫之荘駅 徒歩5分
TEL 06-6480-5315
FAX 06-6480-5308
ホームページHP https://www.housing-stage.co.jp/
メールアドレスE-MAIL yokkaichi@bdu-f.co.jp
免許番号 兵庫県知事(3)第204169号
営業時間 10:00~18:00
定休日 毎週火曜日、水曜日
物件を探す ×
物件種別
エリア
価格
建物面積
土地面積
専有面積
間取り
駅徒歩
築年数
こだわり条件
無料会員登録で非公開販売物件をご覧いただけます! 新規会員登録

会員登録で物件数が大幅アップ!

公開物件
270
公開物件+非公開物件
1,168

現在の会員数631

  • 会員登録は無料!
  • 会員専用マイページを作成!
  • 希望条件に合う新着・価格変更物件をメール配信!
  • 非公開物件が閲覧可能!
  • 他社にはない特別限定物件のご紹介チャンスあり!
新規会員登録