尼崎市 塚口町5丁目 新築一戸建て

尼崎市 不動産尼崎市 塚口町5丁目 新築一戸建て

兵庫県尼崎市塚口町5丁目の新築一戸建ての購入【仲介手数料無料ハウジングステージ】

〔物件ID〕 0000032773
  • 仲介手数料無料
  • 新築戸建
  • 新着
6,280 万円
所在地 兵庫県尼崎市塚口町5丁目
交通 阪急神戸線「塚口」駅 徒歩13分
建築面積 103.30m2 (31.24坪)
土地面積 90.04m2 (27.23坪)
築年月 2026年03月(令和8年03月)
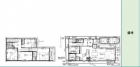
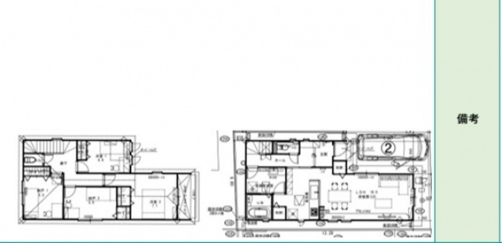
間取り 2LDK

仲介手数料
無料
法定上限額 100%OFF

  • 駐車場あり
尼崎市 塚口町5丁目 新築一戸建ての物件写真
尼崎市 塚口町5丁目 新築一戸建てのMAP・周辺環境
尼崎市 塚口町5丁目 新築一戸建ての物件概要
所在地 兵庫県尼崎市塚口町5丁目
交通 阪急神戸線「塚口」駅 徒歩13分
価格 6,280万円
小学校区尼崎北小学校 (距離 750 m)中学校区塚口中学校 (距離 1600 m)
建物面積 103.30m2(31.24坪) 土地面積 90.04m2(27.23坪)
間取り 2LDK 構造 木造
築年月 2026年03月(令和8年03月) 総戸数 ---
土地権利 所有権 地目 宅地
私道負担/私道面積 セットバック/距離/面積
都市計画 市街 用途地域 一中
建ぺい率 60% 容積率 200%
接道状況 一方
方向:東      種別:公道      幅員:4.5m      間口:6.7m
駐車場 駐車場料金 ---
その他使用料 ---
現況 空家 引渡 期日指定(2026年03月)
取引態様 仲介 国土法届出 ---
設備 ---
コメント ※写真は施工例です
更新日 2026年01月18日 次回更新予定日 2026年02月01日
ローンシミュレーション
自己資金 万円
※別途、諸費用が必要です。
ローン借入額 万円
内ボーナス時支払い 万円
※ボーナス返済月の加算額ではありません。
※お借入れ予定額の50%以下の金額をご入力ください。
金利
返済年数
  • 月々(毎月返済額)
  • 0
  • ボーナス(ボーナス時加算額)
  • 0
同じエリアの売り出し物件

尼崎市塚口町の一戸建て情報

尼崎市 塚口町5丁目 新築一戸建て
  • 仲介手数料無料
  • 新築一戸建て
  • 新着

仲介手数料
無料
法定上限額 100%OFF

6,180万円/3LDK
  • 兵庫県尼崎市塚口町5丁目
  • 阪急神戸線「塚口」駅 徒歩13分
  • [建物面積] 101.64m2
  • ※写真は施工例です
  • 月々0
  • ボーナス0
尼崎市 塚口町6丁目 中古一戸建て
  • 仲介手数料30%OFF
  • 中古一戸建て
  • 値下げ

仲介手数料
割引
法定上限額 30%OFF

6,480万円/4LDK
  • 兵庫県尼崎市塚口町6丁目
  • 阪急神戸線「塚口」駅 徒歩18分
  • [建物面積] 95.46m2
  • ■(株)一条工務店の家 ■土地面積約39坪 ■2015年1月建築 ■オール電化住宅 ■段差のな…
  • 月々0
  • ボーナス0
尼崎市 塚口町6丁目 新築一戸建て
  • 仲介手数料無料
  • 新築一戸建て
  • 値下げ

仲介手数料
無料
法定上限額 100%OFF

5,598万円/4LDK
  • 兵庫県尼崎市塚口町6丁目
  • 阪急神戸線「塚口」駅 徒歩13分
  • [建物面積] 102.17m2
  • 月々0
  • ボーナス0

尼崎市の一戸建て情報

尼崎市 常松1丁目 新築一戸建て
  • 仲介手数料無料
  • 新築一戸建て
  • 新着

仲介手数料
無料
法定上限額 100%OFF

4,680万円/2SLDK
  • 兵庫県尼崎市常松1丁目
  • 阪急神戸線「武庫之荘」駅 バス10分/停歩3分
  • [建物面積] 91.12m2
  • □駐車2台の邸宅誕生 ※写真は施工例です
  • 月々0
  • ボーナス0
尼崎市 東園田町1丁目 新築一戸建て
  • 仲介手数料無料
  • 新築一戸建て
  • 新着

仲介手数料
無料
法定上限額 100%OFF

5,198万円/4LDK
  • 兵庫県尼崎市東園田町1丁目
  • 阪急神戸線「園田」駅 徒歩17分
  • [建物面積] 96.87m2
  • ▼特徴 ・コミュニケーションを育むリビング階段仕様 ・配膳がスムーズな対面式キッチン、床下収納…
  • 月々0
  • ボーナス0
尼崎市 御園1丁目 中古一戸建て
  • 仲介手数料無料
  • 中古一戸建て

仲介手数料
無料
法定上限額 100%OFF

4,199万円/3SLDK
  • 兵庫県尼崎市御園1丁目
  • JR福知山線「塚口」駅 徒歩12分
  • [建物面積] 116.23m2
  • ◆2013年築 リフォーム戸建 ◆JR塚口駅徒歩12分の立地 ◆現状でのご内覧が可能 ◆食器…
  • 月々0
  • ボーナス0
尼崎市 長洲中通2丁目 中古一戸建て
  • 仲介手数料30%OFF
  • 中古一戸建て
  • 値下げ

仲介手数料
割引
法定上限額 30%OFF

990万円/3LDK
  • 兵庫県尼崎市長洲中通2丁目
  • JR東海道本線「尼崎」駅 徒歩13分
  • [建物面積] 118.42m2
  • ●敷地面積約38坪! ●JR尼崎駅まで徒歩13分!収益物件にも最適! ●スーパーやコンビニが徒…
  • 月々0
  • ボーナス0

物件情報と現況に差異がある場合、現況を優先します。
掲載物件は売却済み、売却中止、価格変更となる場合がありますので、予めご了承ください。
仲介物件には所定の仲介手数料(消費税含む)が必要です。

株式会社ハウジングステージ
会社名 株式会社ハウジングステージ
所在地 〒661-0033
尼崎市南武庫之荘2丁目6-5
交通 阪急武庫之荘駅 徒歩5分
TEL 06-6480-5315
FAX 06-6480-5308
ホームページHP https://www.housing-stage.co.jp/
メールアドレスE-MAIL yokkaichi@bdu-f.co.jp
免許番号 兵庫県知事(3)第204169号
営業時間 10:00~18:00
定休日 毎週火曜日、水曜日
物件を探す ×
物件種別
エリア
価格
建物面積
土地面積
専有面積
間取り
駅徒歩
築年数
こだわり条件
無料会員登録で非公開販売物件をご覧いただけます! 新規会員登録

会員登録で物件数が大幅アップ!

公開物件
260
公開物件+非公開物件
1,210

現在の会員数617

  • 会員登録は無料!
  • 会員専用マイページを作成!
  • 希望条件に合う新着・価格変更物件をメール配信!
  • 非公開物件が閲覧可能!
  • 他社にはない特別限定物件のご紹介チャンスあり!
新規会員登録