伊丹市 東野1丁目 新築一戸建て

尼崎市 不動産伊丹市 東野1丁目 新築一戸建て

兵庫県伊丹市東野1丁目の新築一戸建ての購入【仲介手数料無料ハウジングステージ】

〔物件ID〕 0000032744
  • 仲介手数料30%OFF
  • 新築戸建
  • 新着
4,280 万円
所在地 兵庫県伊丹市東野1丁目
交通 阪急伊丹線「伊丹」駅 徒歩35分
建築面積 100.44m2 (30.38坪)
土地面積 101.47m2 (30.69坪)
築年月 2026年06月(令和8年06月)
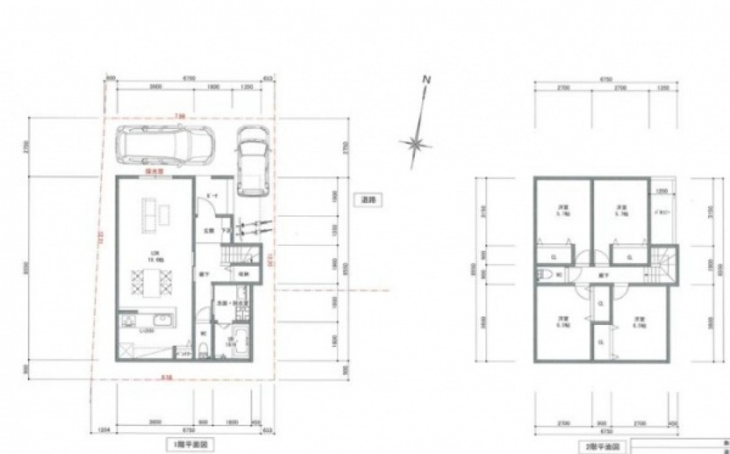
間取り 4LDK

仲介手数料
割引
法定上限額 30%OFF

  • 駐車場あり
  • 駐車場2台以上
伊丹市 東野1丁目 新築一戸建ての物件写真
伊丹市 東野1丁目 新築一戸建てのMAP・周辺環境
伊丹市 東野1丁目 新築一戸建ての物件概要
所在地 兵庫県伊丹市東野1丁目
交通 阪急伊丹線「伊丹」駅 徒歩35分
価格 4,280万円
小学校区荻野小学校中学校区東中学校
建物面積 100.44m2(30.38坪) 土地面積 101.47m2(30.69坪)
間取り 4LDK 構造 木造
築年月 2026年06月(令和8年06月) 総戸数 ---
土地権利 所有権 地目 宅地
私道負担/私道面積 --- セットバック/距離/面積 ---
都市計画 市街 用途地域 二中
建ぺい率 60% 容積率 200%
接道状況 ---
駐車場 --- 駐車場料金 ---
その他使用料 ---
現況 未完成 引渡 期日指定(2026年06月)
取引態様 仲介 国土法届出 ---
設備 ---
コメント ★駐車2台可能
★充実の設備仕様
更新日 2026年01月17日 次回更新予定日 2026年01月31日
ローンシミュレーション
自己資金 万円
※別途、諸費用が必要です。
ローン借入額 万円
内ボーナス時支払い 万円
※ボーナス返済月の加算額ではありません。
※お借入れ予定額の50%以下の金額をご入力ください。
金利
返済年数
  • 月々(毎月返済額)
  • 0
  • ボーナス(ボーナス時加算額)
  • 0
同じエリアの売り出し物件

伊丹市東野の一戸建て情報

伊丹市 東野4丁目 中古一戸建て
  • 仲介手数料30%OFF
  • 中古一戸建て

仲介手数料
割引
法定上限額 30%OFF

3,280万円/4LDK
  • 兵庫県伊丹市東野4丁目
  • 阪急伊丹線「伊丹」駅 バス11分/停歩3分
  • [建物面積] 90.04m2
  • ★リフォーム済み
  • 月々0
  • ボーナス0
伊丹市 東野4丁目 新築一戸建て
  • 仲介手数料無料
  • 新築一戸建て

仲介手数料
無料
法定上限額 100%OFF

3,990万円/3LDK
  • 兵庫県伊丹市東野4丁目
  • JR福知山線「北伊丹」駅 バス16分/停歩3分
  • [建物面積] 87.35m2
  • □閑静な住宅街 □関西スーパーまで徒歩7分 ※写真は施工例です
  • 月々0
  • ボーナス0

伊丹市の一戸建て情報

伊丹市 荻野1丁目 中古一戸建て
  • 仲介手数料30%OFF
  • 中古一戸建て
  • 値下げ

仲介手数料
割引
法定上限額 30%OFF

2,880万円/4LDK
  • 兵庫県伊丹市荻野1丁目
  • 阪急伊丹線「伊丹」駅 バス13分/停歩5分
  • [建物面積] 210.40m2
  • 事務所兼住居をお探しの方必見 1F事務所、2F、3F居住スペース 駐車2台 ・鉄骨造3階建て…
  • 月々0
  • ボーナス0
伊丹市 御願塚7丁目 新築一戸建て
  • 仲介手数料30%OFF
  • 新築一戸建て
  • 値下げ

仲介手数料
割引
法定上限額 30%OFF

5,490万円/3LDK
  • 兵庫県伊丹市御願塚7丁目
  • 阪急伊丹線「稲野」駅 徒歩11分
  • [建物面積] 105.98m2
  • □阪急伊丹線「稲野」駅まで平坦で徒歩11分!JRも利用可能◎ 生活環境に優れたエリアに限定1棟誕生!
  • 月々0
  • ボーナス0
伊丹市 池尻5丁目 中古一戸建て
  • 仲介手数料30%OFF
  • 中古一戸建て

仲介手数料
割引
法定上限額 30%OFF

1,900万円/5DK
  • 兵庫県伊丹市池尻5丁目
  • 阪急伊丹線「伊丹」駅 バス9分/停歩13分
  • [建物面積] 101.02m2
  • ★広々5DK
  • 月々0
  • ボーナス0
伊丹市 春日丘2丁目 中古一戸建て
  • 仲介手数料30%OFF
  • 中古一戸建て

仲介手数料
割引
法定上限額 30%OFF

780万円/6K
  • 兵庫県伊丹市春日丘2丁目
  • 阪急伊丹線「伊丹」駅 徒歩15分
  • [建物面積] 57.66m2
  • 月々0
  • ボーナス0

物件情報と現況に差異がある場合、現況を優先します。
掲載物件は売却済み、売却中止、価格変更となる場合がありますので、予めご了承ください。
仲介物件には所定の仲介手数料(消費税含む)が必要です。

株式会社ハウジングステージ
会社名 株式会社ハウジングステージ
所在地 〒661-0033
尼崎市南武庫之荘2丁目6-5
交通 阪急武庫之荘駅 徒歩5分
TEL 06-6480-5315
FAX 06-6480-5308
ホームページHP https://www.housing-stage.co.jp/
メールアドレスE-MAIL yokkaichi@bdu-f.co.jp
免許番号 兵庫県知事(3)第204169号
営業時間 10:00~18:00
定休日 毎週火曜日、水曜日
物件を探す ×
物件種別
エリア
価格
建物面積
土地面積
専有面積
間取り
駅徒歩
築年数
こだわり条件
無料会員登録で非公開販売物件をご覧いただけます! 新規会員登録

会員登録で物件数が大幅アップ!

公開物件
264
公開物件+非公開物件
1,225

現在の会員数617

  • 会員登録は無料!
  • 会員専用マイページを作成!
  • 希望条件に合う新着・価格変更物件をメール配信!
  • 非公開物件が閲覧可能!
  • 他社にはない特別限定物件のご紹介チャンスあり!
新規会員登録