エーベル園田・田能1650万円の物件情報【仲介手数料無料ハウジングステージ】

エーベル園田・田能の購入【仲介手数料無料ハウジングステージ】

エーベル園田・田能

尼崎市 不動産 > エーベル園田・田能

〔物件ID〕 0000032589
仲介手数料30%OFF 中古マンション New
1,650 万円
所在地 兵庫県尼崎市田能3丁目
交通 阪急神戸線「園田」駅 バス8分/停歩2分(バス停 田能)
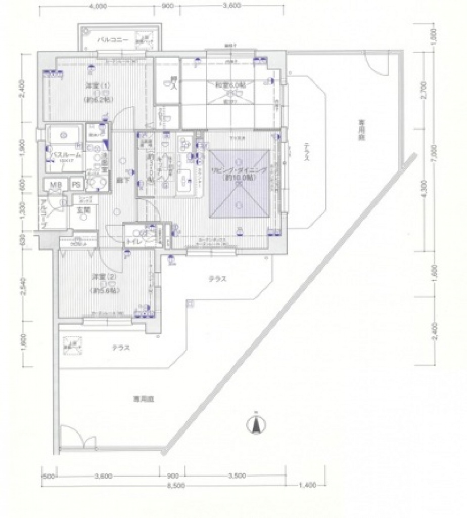
専有面積 66.39m2 (20.08坪)
間取り 3LDK
築年月 2000年10月(平成12年10月)
所在階/階数 1 階 / 7 階
  • 仲介手数料30%OFF
  • 南向き
  • 駐車場あり
エーベル園田・田能の物件写真
  • エーベル園田・田能のMAP・周辺環境
    エーベル園田・田能の物件概要
    所在地 兵庫県尼崎市田能3丁目
    交通 阪急神戸線「園田」駅 バス8分/停歩2分(バス停 田能)
    価格 1,650万円
    小学校区園和北小学校 (距離 900 m)中学校区園田中学校 (距離 880 m)
    専有面積 66.39m2(20.08坪) 間取り 3LDK
    バルコニー面積 62.77m2 バルコニー向き
    その他面積 ---
    構造 RC 所在階/階建 1階/7階
    築年月 2000年10月(平成12年10月) 総戸数 27戸
    土地権利 所有権 用途地域 一中
    管理会社 HESTAオークラハウジング株式会社
    管理形態 管理会社に全部委託 管理員 日勤
    管理費 11,310円 修繕積立金 13,200円
    駐車場 空有 駐車場料金 12,000 円
    その他使用料 ---
    現況 空家 引渡 即時
    取引態様 仲介 国土法届出 ---
    コメント 自分好みにリノベーションできます
    ~こんな方にオススメ~
    〇物件購入価格を抑え『お部屋を自分好みにカスタマイズ』したい方
    〇マンションだけど広いお庭が欲しい方
    ★田畑が多くのどかな雰囲気!
    ★バス停徒歩2分!
    ★外壁は一部タイル張り!
    ★オートロックと宅配ボックス付き!
    ★『園和北小学校』徒歩6分!
    ★『園田中学校』徒歩15分!
    ★『マンダイ 尼崎食満店』徒歩12分!
    ★『田能西公園』徒歩6分!
    ★『農業公園』徒歩8分!
    更新日 2026年01月08日 次回更新予定日 2026年01月22日
    ローンシミュレーション
    自己資金 万円
    ※別途、諸費用が必要です。
    ローン借入額 万円
    内ボーナス時支払い 万円
    ※ボーナス返済月の加算額ではありません。
    ※お借入れ予定額の50%以下の金額をご入力ください。
    金利
    返済年数
    • 月々(毎月返済額)
    • 0
    • ボーナス(ボーナス時加算額)
    • 0

    物件情報と現況に差異がある場合、現況を優先します。
    掲載物件は売却済み、売却中止、価格変更となる場合がありますので、予めご了承ください。
    仲介物件には所定の仲介手数料(消費税含む)が必要です。

    株式会社ハウジングステージ
    会社名 株式会社ハウジングステージ
    所在地 〒661-0033
    尼崎市南武庫之荘2丁目6-5
    交通 阪急武庫之荘駅 徒歩5分
    TEL 06-6480-5315
    FAX 06-6480-5308
    ホームページHP https://www.housing-stage.co.jp/
    メールアドレスE-MAIL info@housing-stage.co.jp
    免許番号 兵庫県知事(3)第204169号
    営業時間 10:00~18:00
    定休日 毎週火曜日、水曜日
    同じエリアの売り出し物件
    兵庫県尼崎市田能の中古マンション情報
    モンテベルデ北園田
    仲介手数料30%OFF 中古マンション Down
    1,768万円/3LDK
    • 兵庫県尼崎市田能5丁目
    • JR福知山線「猪名寺」駅 徒歩14分
    • [専有面積] 75.00m2
    • 月々0
    • ボーナス0
    尼崎市の中古マンション情報
    ルネ武庫川
    仲介手数料30%OFF 中古マンション Down
    1,599万円/3LDK
    • 兵庫県尼崎市稲葉荘2丁目
    • JR東海道本線「甲子園口」駅 徒歩18分
    • [専有面積] 63.25m2
    • 月々0
    • ボーナス0
    ルネ武庫川
    仲介手数料30%OFF 中古マンション Down
    1,490万円/2LDK
    • 兵庫県尼崎市稲葉荘2丁目
    • JR東海道本線「甲子園口」駅 徒歩18分
    • [専有面積] 63.25m2
    • 月々0
    • ボーナス0
    レジェイド武庫之荘本町
    仲介手数料30%OFF 中古マンション
    4,800万円/3LDK
    • 兵庫県尼崎市武庫之荘本町2丁目
    • 阪急神戸線「武庫之荘」駅 徒歩15分
    • [専有面積] 62.76m2
    • 月々0
    • ボーナス0
    ローレルコート立花町
    仲介手数料30%OFF 中古マンション Down
    4,780万円/4LDK
    • 兵庫県尼崎市立花町1丁目
    • JR東海道本線「立花」駅 徒歩7分
    • [専有面積] 86.91m2
    • 月々0
    • ボーナス0
    物件を探す ×
    物件種別
    エリア
    価格
    建物面積
    土地面積
    専有面積
    建築条件
    現況
    間取り
    駅徒歩
    築年数
    こだわり条件
    会員登録で非公開物件をご覧いただけます! 会員登録で非公開物件をご覧いただけます!
    公開物件
    265
    会員登録で物件数が大幅アップ! 会員登録で物件数が大幅アップ!
    公開物件+
    非公開物件

    1,263

    現在の会員数 615

    • 会員登録は無料!
    • 会員専用
      マイページを作成!
    • 希望条件に合う新着・
      価格変更物件をメール配信!
    • 非公開物件が閲覧可能!
    • 他社にはない特別限定物件の
      ご紹介チャンスあり!
    ※購入希望条件に合った非公開物件が閲覧可能です。
    ※特別限定物件については、担当者にお問い合わせください。
    株式会社 ハウジングステージ
    株式会社 ハウジングステージ
    〒661-0033 兵庫県尼崎市南武庫之荘2丁目6番5号
    TEL:06-6480-5315  
    FAX:06-6480-5308 お問い合わせ