塚口アクシード4680万円の物件情報【仲介手数料無料ハウジングステージ】

塚口アクシードの購入【仲介手数料無料ハウジングステージ】

塚口アクシード

尼崎市 不動産 > 塚口アクシード

〔物件ID〕 0000031975
仲介手数料30%OFF 中古マンション
4,680 万円
所在地 兵庫県尼崎市東塚口町1丁目
交通 JR福知山線「塚口」駅 徒歩2分
阪急神戸線 「塚口」駅徒歩11分
専有面積 75.61m2 (22.87坪)
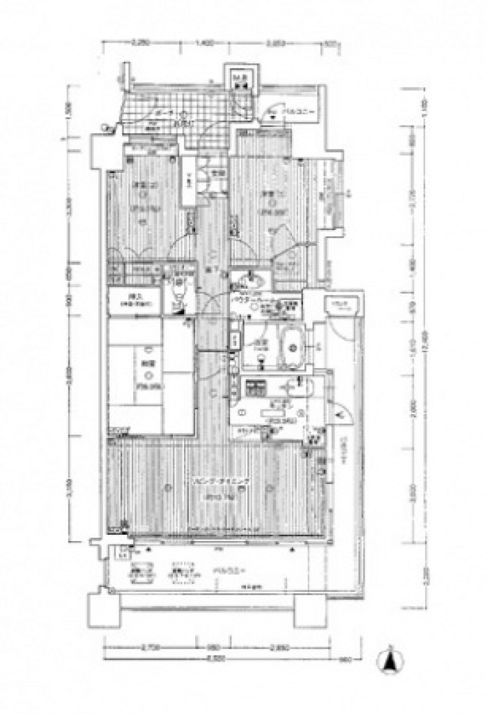
間取り 3LDK
築年月 2002年02月(平成14年02月)
所在階/階数 11 階 / 11 階
  • 仲介手数料30%OFF
  • 南向き
  • ペット可
  • 最上階
  • リフォーム済
  • リノベーション済
  • 駐車場あり
塚口アクシードの物件写真
  • 塚口アクシードのMAP・周辺環境
    塚口アクシードの物件概要
    所在地 兵庫県尼崎市東塚口町1丁目
    交通 JR福知山線「塚口」駅 徒歩2分
    阪急神戸線 「塚口」駅徒歩11分
    価格 4,680万円
    小学校区上坂部小学校 (距離 320 m)中学校区小園中学校 (距離 2000 m)
    専有面積 75.61m2(22.87坪) 間取り 3LDK
    バルコニー面積 23.51m2 バルコニー向き
    その他面積 ---
    構造 RC 所在階/階建 11階/11階
    築年月 2002年02月(平成14年02月) 総戸数 49戸
    土地権利 所有権 用途地域 一住
    管理会社 (株)グローバルコミュニティ
    管理形態 管理会社に全部委託 管理員 日勤
    管理費 9,800円 修繕積立金 18,900円
    駐車場 空有 駐車場料金 13,000 円
    その他使用料 ---
    現況 空家 引渡 即時
    取引態様 仲介 国土法届出 ---
    コメント (2025年10月リフォーム完了)
     水回り設備交換:浴室・トイレ
     内装リフォーム:壁・床
     その他:建具
    ★JR福知山線「塚口」駅徒歩2分!
    ★阪急神戸線「塚口」駅徒歩10分!
    ★外壁はブラウン系のタイル貼り!
    ★建物はアウトポール設計・逆梁工法!
    ★オートロック・宅配ボックス付き!
    ★ペット飼育可能!(諸条件有り)
    ★『上坂部小学校』徒歩4分!
    ★『成城石井 ビエラ塚口』徒歩4分!
    ★『上坂部西公園』徒歩6分!
    ★『小園中学校』徒歩25分!
    更新日 2025年12月13日 次回更新予定日 2025年12月27日
    ローンシミュレーション
    自己資金 万円
    ※別途、諸費用が必要です。
    ローン借入額 万円
    内ボーナス時支払い 万円
    ※ボーナス返済月の加算額ではありません。
    ※お借入れ予定額の50%以下の金額をご入力ください。
    金利
    返済年数
    • 月々(毎月返済額)
    • 0
    • ボーナス(ボーナス時加算額)
    • 0

    物件情報と現況に差異がある場合、現況を優先します。
    掲載物件は売却済み、売却中止、価格変更となる場合がありますので、予めご了承ください。
    仲介物件には所定の仲介手数料(消費税含む)が必要です。

    株式会社ハウジングステージ
    会社名 株式会社ハウジングステージ
    所在地 〒661-0033
    尼崎市南武庫之荘2丁目6-5
    交通 阪急武庫之荘駅 徒歩5分
    TEL 06-6480-5315
    FAX 06-6480-5308
    ホームページHP https://www.housing-stage.co.jp/
    メールアドレスE-MAIL info@housing-stage.co.jp
    免許番号 兵庫県知事(3)第204169号
    営業時間 10:00~18:00
    定休日 毎週火曜日、水曜日
    同じエリアの売り出し物件
    尼崎市の中古マンション情報
    オークヒルズ武庫之荘リベルテージ
    仲介手数料30%OFF 中古マンション Down
    2,980万円/3LDK
    • 兵庫県尼崎市武庫之荘8丁目
    • 阪急神戸線「武庫之荘」駅 バス5分/停歩4分
    • [専有面積] 70.95m2
    • 月々0
    • ボーナス0
    ルネ武庫川
    仲介手数料30%OFF 中古マンション
    1,980万円/3LDK
    • 兵庫県尼崎市稲葉荘2丁目
    • JR東海道本線「甲子園口」駅 徒歩18分
    • [専有面積] 78.75m2
    • 月々0
    • ボーナス0
    レジェイド武庫之荘本町
    仲介手数料30%OFF 中古マンション
    4,800万円/3LDK
    • 兵庫県尼崎市武庫之荘本町2丁目
    • 阪急神戸線「武庫之荘」駅 徒歩15分
    • [専有面積] 62.76m2
    • 月々0
    • ボーナス0
    セレブコート立花
    仲介手数料30%OFF 中古マンション
    2,280万円/2LDK
    • 兵庫県尼崎市三反田町1丁目
    • JR東海道本線「立花」駅 徒歩10分
    • [専有面積] 50.24m2
    • 月々0
    • ボーナス0
    物件を探す ×
    物件種別
    エリア
    価格
    建物面積
    土地面積
    専有面積
    建築条件
    現況
    間取り
    駅徒歩
    築年数
    こだわり条件
    会員登録で非公開物件をご覧いただけます! 会員登録で非公開物件をご覧いただけます!
    公開物件
    245
    会員登録で物件数が大幅アップ! 会員登録で物件数が大幅アップ!
    公開物件+
    非公開物件

    1,227

    現在の会員数 613

    • 会員登録は無料!
    • 会員専用
      マイページを作成!
    • 希望条件に合う新着・
      価格変更物件をメール配信!
    • 非公開物件が閲覧可能!
    • 他社にはない特別限定物件の
      ご紹介チャンスあり!
    ※購入希望条件に合った非公開物件が閲覧可能です。
    ※特別限定物件については、担当者にお問い合わせください。
    株式会社 ハウジングステージ
    株式会社 ハウジングステージ
    〒661-0033 兵庫県尼崎市南武庫之荘2丁目6番5号
    TEL:06-6480-5315  
    FAX:06-6480-5308 お問い合わせ