尼崎市 西難波町6丁目 新築一戸建て3950万円の物件情報【仲介手数料無料ハウジングステージ】

尼崎市 西難波町6丁目 新築一戸建ての購入【仲介手数料無料ハウジングステージ】

尼崎市 西難波町6丁目 新築一戸建て

尼崎市 不動産 > 尼崎市 西難波町6丁目 新築一戸建て

〔物件ID〕 0000031107
仲介手数料30%OFF 新築戸建
3,950 万円
所在地 兵庫県尼崎市西難波町6丁目
交通 JR東海道本線「立花」駅 徒歩16分
建築面積 101.60m2 (30.73坪)
土地面積 55.48m2 (16.78坪)
築年月 2025年07月(令和7年07月)
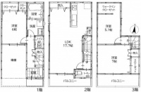
間取り 3LDK
  • 仲介手数料30%OFF
  • 駐車場あり
  • 南面道路
尼崎市 西難波町6丁目 新築一戸建ての物件写真
  • 尼崎市 西難波町6丁目 新築一戸建てのMAP・周辺環境
    尼崎市 西難波町6丁目 新築一戸建ての物件概要
    所在地 兵庫県尼崎市西難波町6丁目
    交通 JR東海道本線「立花」駅 徒歩16分
    価格 3,950万円
    小学校区難波の梅小学校 (距離 280 m)中学校区日新中学校 (距離 500 m)
    建物面積 101.60m2(30.73坪) 土地面積 55.48m2(16.78坪)
    間取り 3LDK 構造 木造
    築年月 2025年07月(令和7年07月) 総戸数 ---
    駐車場 駐車場料金 ---
    土地権利 所有権 地目 宅地
    私道負担/私道面積 セットバック/距離/面積
    都市計画 市街 用途地域 一住
    建ぺい率 60% 容積率 200%
    接道状況 一方
    方向:南      種別:公道      幅員:6m      間口:--
    設備 ---
    その他使用料 ---
    現況 空家 引渡 即時
    取引態様 仲介 国土法届出 ---
    コメント ・南向き
    ・LDK17.7帖
    ・尼崎市役所徒歩4分
    更新日 2026年01月08日 次回更新予定日 2026年01月22日
    ローンシミュレーション
    自己資金 万円
    ※別途、諸費用が必要です。
    ローン借入額 万円
    内ボーナス時支払い 万円
    ※ボーナス返済月の加算額ではありません。
    ※お借入れ予定額の50%以下の金額をご入力ください。
    金利
    返済年数
    • 月々(毎月返済額)
    • 0
    • ボーナス(ボーナス時加算額)
    • 0

    物件情報と現況に差異がある場合、現況を優先します。
    掲載物件は売却済み、売却中止、価格変更となる場合がありますので、予めご了承ください。
    仲介物件には所定の仲介手数料(消費税含む)が必要です。

    株式会社ハウジングステージ
    会社名 株式会社ハウジングステージ
    所在地 〒661-0033
    尼崎市南武庫之荘2丁目6-5
    交通 阪急武庫之荘駅 徒歩5分
    TEL 06-6480-5315
    FAX 06-6480-5308
    ホームページHP https://www.housing-stage.co.jp/
    メールアドレスE-MAIL info@housing-stage.co.jp
    免許番号 兵庫県知事(3)第204169号
    営業時間 10:00~18:00
    定休日 毎週火曜日、水曜日
    同じエリアの売り出し物件
    兵庫県尼崎市西難波町の一戸建て情報
    尼崎市 西難波町1丁目 中古一戸建て
    仲介手数料30%OFF 中古戸建 Down
    4,180万円/4SLDK
    • 兵庫県尼崎市西難波町1丁目
    • JR東海道本線「立花」駅 徒歩16分
    • [建物面積] 111.22m2
    • 月々0
    • ボーナス0
    尼崎市の一戸建て情報
    尼崎市 南武庫之荘5丁目 中古一戸建て
    仲介手数料30%OFF 中古戸建
    4,980万円/4LDK
    • 兵庫県尼崎市南武庫之荘5丁目
    • 阪急神戸線「武庫之荘」駅 徒歩10分
    • [建物面積] 278.88m2
    • 月々0
    • ボーナス0
    尼崎市 東園田町2丁目 中古一戸建て
    仲介手数料30%OFF 中古戸建 New
    3,499万円/5LDK
    • 兵庫県尼崎市東園田町2丁目
    • 阪急神戸線「園田」駅 徒歩14分
    • [建物面積] 116.63m2
    • 月々0
    • ボーナス0
    尼崎市 大西町1丁目 中古一戸建て
    仲介手数料30%OFF 中古戸建 Down
    1,980万円/3LDK
    • 兵庫県尼崎市大西町1丁目
    • JR東海道本線「立花」駅 徒歩13分
    • [建物面積] 88.06m2
    • 月々0
    • ボーナス0
    尼崎市 大西町3丁目 中古一戸建て
    仲介手数料30%OFF 中古戸建 Down
    980万円/5DK
    • 兵庫県尼崎市大西町3丁目
    • 阪急神戸線「塚口」駅 徒歩19分
    • [建物面積] 84.45m2
    • 月々0
    • ボーナス0
    物件を探す ×
    物件種別
    エリア
    価格
    建物面積
    土地面積
    専有面積
    建築条件
    現況
    間取り
    駅徒歩
    築年数
    こだわり条件
    会員登録で非公開物件をご覧いただけます! 会員登録で非公開物件をご覧いただけます!
    公開物件
    256
    会員登録で物件数が大幅アップ! 会員登録で物件数が大幅アップ!
    公開物件+
    非公開物件

    1,187

    現在の会員数 616

    • 会員登録は無料!
    • 会員専用
      マイページを作成!
    • 希望条件に合う新着・
      価格変更物件をメール配信!
    • 非公開物件が閲覧可能!
    • 他社にはない特別限定物件の
      ご紹介チャンスあり!
    ※購入希望条件に合った非公開物件が閲覧可能です。
    ※特別限定物件については、担当者にお問い合わせください。
    株式会社 ハウジングステージ
    株式会社 ハウジングステージ
    〒661-0033 兵庫県尼崎市南武庫之荘2丁目6番5号
    TEL:06-6480-5315  
    FAX:06-6480-5308 お問い合わせ