サンプリンス伊丹1330万円の物件情報【仲介手数料無料ハウジングステージ】

サンプリンス伊丹の購入【仲介手数料無料ハウジングステージ】

サンプリンス伊丹

尼崎市 不動産 > サンプリンス伊丹

〔物件ID〕 0000026545
仲介手数料30%OFF 中古マンション Down
1,330 万円
所在地 兵庫県伊丹市荻野5丁目
交通 阪急伊丹線「伊丹」駅 バス15分/停歩4分(バス停 荻野)
阪急伊丹線 「伊丹」駅バス14分/停歩2分(バス停 荻野)
専有面積 57.42m2 (17.36坪)
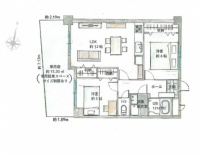
間取り 2LDK
築年月 1991年03月(平成3年03月)
所在階/階数 1 階 / 4 階
  • 仲介手数料30%OFF
サンプリンス伊丹の物件写真
  • サンプリンス伊丹のMAP・周辺環境
    サンプリンス伊丹の物件概要
    所在地 兵庫県伊丹市荻野5丁目
    交通 阪急伊丹線「伊丹」駅 バス15分/停歩4分(バス停 荻野)
    阪急伊丹線 「伊丹」駅バス14分/停歩2分(バス停 荻野)
    価格 1,330万円
    小学校区荻野小学校 (距離 560 m)中学校区荒牧中学校 (距離 880 m)
    専有面積 57.42m2(17.36坪) 間取り 2LDK
    バルコニー面積 15.30m2 バルコニー向き 西
    その他面積 ---
    構造 RC 所在階/階建 1階/4階
    築年月 1991年03月(平成3年03月) 総戸数 13戸
    土地権利 所有権 用途地域 一中
    管理会社 晴耕雨耕株式会社
    管理形態 管理会社に全部委託 管理員 巡回
    管理費 9,360円 修繕積立金 10,340円
    駐車場 --- 駐車場料金 1,500 円
    その他使用料 ---
    現況 空家 引渡 相談
    取引態様 仲介 国土法届出 ---
    コメント ・2024年6月 リノベーション工事完了!
    ・水回り(システムキッチン・浴室・トイレ・洗面台)全て一新
    ・お風呂は追焚機能プラス浴室暖房乾燥機付
    ・全窓インナーサッシ設置
    ■専用使用駐車スペースあり(車種制限あり・専用庭兼用)
    ■2024年6月リノベーション工事完了
    ■小学校・スーパー・コンビニ 徒歩10分以内
    ■浴室乾燥機付オートバス
    ■食器洗乾燥機付システムキッチン
    ■全居室収納
    ■シャワー付洗面化粧台
    ■温水洗浄便座
    ■インナーサッシで断熱性アップ
    サンプリンス伊丹は1991年4月に竣工した総戸数13戸の4階建てのマンションです。専有面積は57.42㎡~68.70㎡、間取りは3DK~3LDKでDINKSやファミリー向けのマンションです。サンプリンス伊丹は北側と西側の2面が道路の角地に位置し、住戸は西向きに配置され、全住戸の約半数が角住戸の設計で、採光や通風が確保しやすくなっています。各住戸にはエアコンが1基設置されています。徒歩9分の所には総合病院があり、いざという時にも安心です。徒歩7分の所にはスーパー、徒歩14分圏内には大型量販店やホームセンターもあります。サンプリンス伊丹は阪急伊丹線の伊丹駅よりバスに乗車し17分の荻野バス停より徒歩2分です。また同バス停よりJR福知山線の伊丹駅周辺にもアクセス可能で、2路線2駅利用できます。最寄り駅周辺には各金融機関や飲食店、スーパーなどの生活施設が揃っています。中国自動車道の宝塚ICが近く、気軽に車でドライブに出かけることができます。周辺には貯水池のある公園が沢山あります。それぞれの公園には梅林の名所や昆虫館などの施設があり、池には多くの渡り鳥が訪れ、お散歩やお花見、ジョギングなどが楽しめる、自然に恵まれた緑豊かな環境にあります。
    更新日 2025年10月19日 次回更新予定日 2025年11月02日
    価格変更履歴

    価格変更履歴については、
    担当者にお問い合わせください。

    ローンシミュレーション
    自己資金 万円
    ※別途、諸費用が必要です。
    ローン借入額 万円
    内ボーナス時支払い 万円
    ※ボーナス返済月の加算額ではありません。
    ※お借入れ予定額の50%以下の金額をご入力ください。
    金利
    返済年数
    • 月々(毎月返済額)
    • 0
    • ボーナス(ボーナス時加算額)
    • 0

    物件情報と現況に差異がある場合、現況を優先します。
    掲載物件は売却済み、売却中止、価格変更となる場合がありますので、予めご了承ください。
    仲介物件には所定の仲介手数料(消費税含む)が必要です。

    株式会社ハウジングステージ
    会社名 株式会社ハウジングステージ
    所在地 〒661-0033
    尼崎市南武庫之荘2丁目6-5
    交通 阪急武庫之荘駅 徒歩5分
    TEL 06-6480-5315
    FAX 06-6480-5308
    ホームページHP https://www.housing-stage.co.jp/
    メールアドレスE-MAIL info@housing-stage.co.jp
    免許番号 兵庫県知事(3)第204169号
    営業時間 10:00~18:00
    定休日 毎週火曜日、水曜日
    同じエリアの売り出し物件
    伊丹市の中古マンション情報
    エンゼルハイムリバーサイド武庫川【フルリノベ済】【正規手数料】
    仲介手数料30%OFF 中古マンション Down
    2,280万円/3LDK
    • 兵庫県伊丹市西野4丁目
    • 阪急伊丹線「伊丹」駅 バス15分/停歩9分
    • [専有面積] 82.40m2
    • 月々0
    • ボーナス0
    エンゼルハイムリバーサイド武庫川
    仲介手数料30%OFF 中古マンション Down
    1,680万円/3LDK
    • 兵庫県伊丹市西野4丁目
    • JR福知山線「伊丹」駅 バス14分/停歩9分
    • [専有面積] 82.40m2
    • 月々0
    • ボーナス0
    チボリ桜台ハイツ3号棟
    仲介手数料30%OFF 中古マンション
    1,480万円/1LDK
    • 兵庫県伊丹市西野8丁目
    • 阪急伊丹線「伊丹」駅 バス17分/停歩3分
    • [専有面積] 60.15m2
    • 月々0
    • ボーナス0
    イスズハイツベル伊丹荻野
    仲介手数料30%OFF 中古マンション Down
    840万円/3LDK
    • 兵庫県伊丹市荻野西2丁目
    • 阪急伊丹線「伊丹」駅 バス18分/停歩2分
    • [専有面積] 57.24m2
    • 月々0
    • ボーナス0
    物件を探す ×
    物件種別
    エリア
    価格
    建物面積
    土地面積
    専有面積
    建築条件
    現況
    間取り
    駅徒歩
    築年数
    こだわり条件
    会員登録で非公開物件をご覧いただけます! 会員登録で非公開物件をご覧いただけます!
    公開物件
    248
    会員登録で物件数が大幅アップ! 会員登録で物件数が大幅アップ!
    公開物件+
    非公開物件

    1,212

    現在の会員数 602

    • 会員登録は無料!
    • 会員専用
      マイページを作成!
    • 希望条件に合う新着・
      価格変更物件をメール配信!
    • 非公開物件が閲覧可能!
    • 他社にはない特別限定物件の
      ご紹介チャンスあり!
    ※購入希望条件に合った非公開物件が閲覧可能です。
    ※特別限定物件については、担当者にお問い合わせください。
    株式会社 ハウジングステージ
    株式会社 ハウジングステージ
    〒661-0033 兵庫県尼崎市南武庫之荘2丁目6番5号
    TEL:06-6480-5315  
    FAX:06-6480-5308 お問い合わせ